반응형
2025년 2회 건축사자격시험 모범답안 (한솔아카데미)
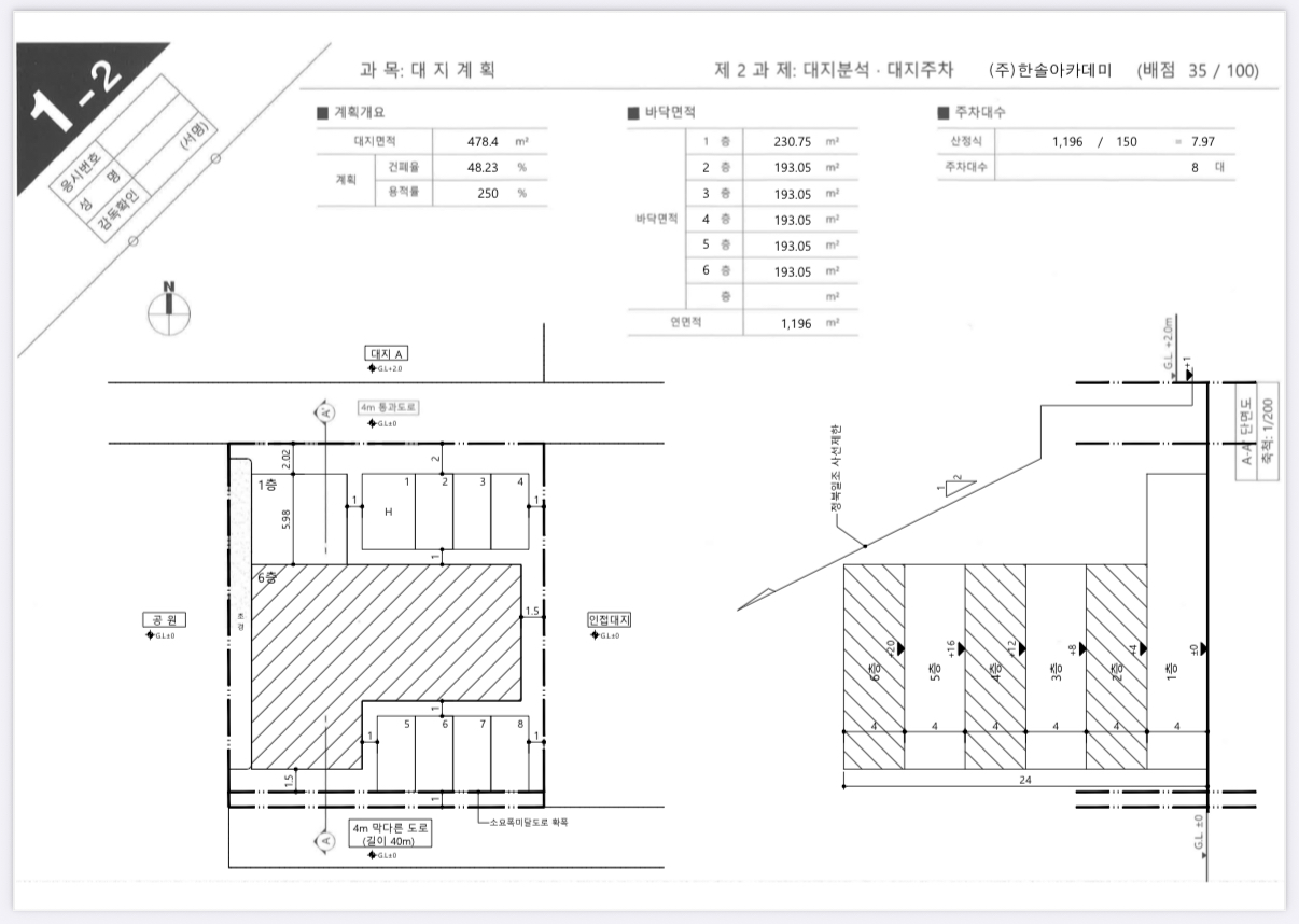
1교시


2025년 2회 건축사자격시험 모범답안 (한솔아카데미)
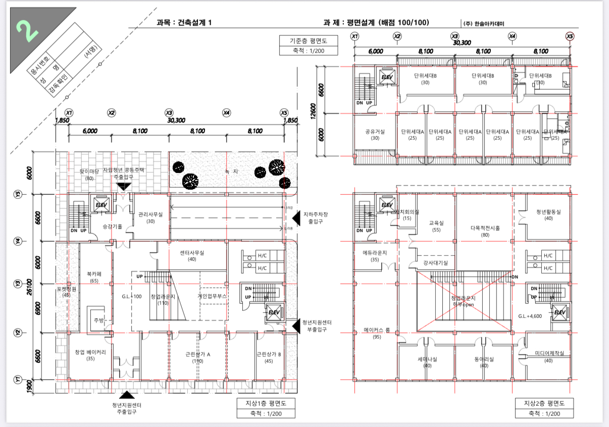
2교시

2025년 2회 건축사자격시험 모범답안 (한솔아카데미)
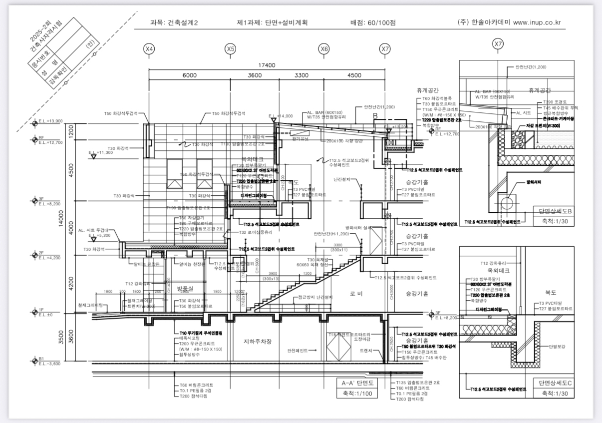
3교시


반응형
'[본업] 건축사 > 건축사자격시험' 카테고리의 다른 글
| 2025년 제2회 건축사자격시험 합격예정자 제출서류 접수안내 (0) | 2025.11.14 |
|---|---|
| 2025년도 제2회 건축사 자격시험 시험장소 공고 (2) | 2025.08.27 |
| [2025 건축사시험 일정] 2025년 2회 건축사 자격시험(2025. 9. 20.) 공고 (7) | 2025.08.07 |
| 건축사자격시험 2025년 1회 3교시 모범답안 주요점 (0) | 2025.07.28 |
| 건축사자격시험 2025년 1회 모범답안 (1교시,2교시,3교시) (0) | 2025.07.28 |
