반응형
건축사 2교시 오답노트 (중정이 있는 평면설계) -1
* 코어 위치가 잘 안 나올 때
- 주출입구 맞은편을 보자
- 1층 부출입구 위치에 2층에는 창고

* 조닝


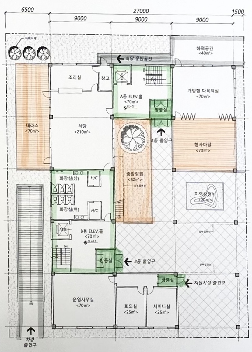
건축사 2교시 오답노트 (중정이 있는 평면설계) -2
* 분동 되었을 때
- 주출입구가 꼭 도로에 면해 있는 것은 아님. 단지로 생각

* 조닝


반응형
'[본업] 건축사 > 건축사 2교시 평면설계' 카테고리의 다른 글
| 건축사 2교시 오답노트 (ㄷ자형, 중정형, 브릿지가 있는 평면설계) (0) | 2025.08.31 |
|---|---|
| 건축사 2교시 오답노트 (경사진 지형 평면설계) (0) | 2025.08.28 |
| 건축사 2교시 오답노트 2020-2 건축사자격시험 기출문제 모범답안 (0) | 2025.08.27 |
| 건축사 2교시 평면설계 오답노트 (생태 전시관) (0) | 2025.08.21 |
| 건축사 2교시 평면설계 오답노트 (지역문화 전수관-연결통로 있는 경우) (0) | 2025.08.20 |
