반응형
건축사자격시험 2025년 1회 모범답안
(1교시,2교시,3교시)
출처 : 한솔아카데미
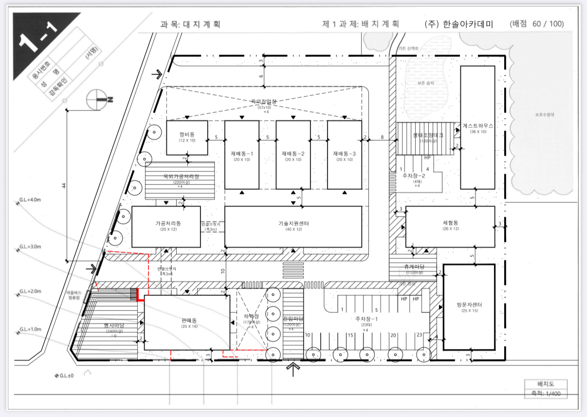
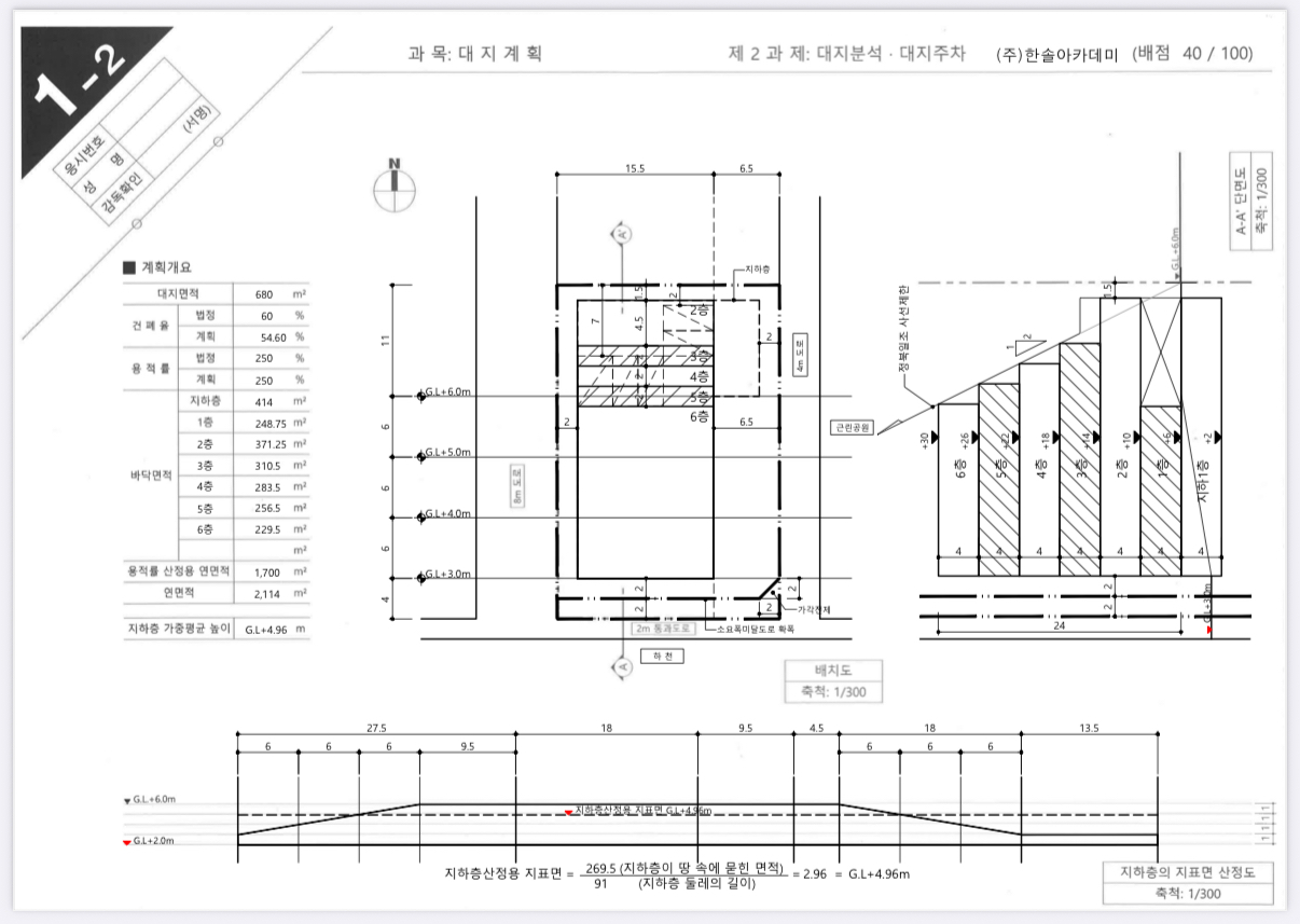
1교시 대지계획
1과제 배치계획

2과제 대지분석 주차계획

2교시 평면설계

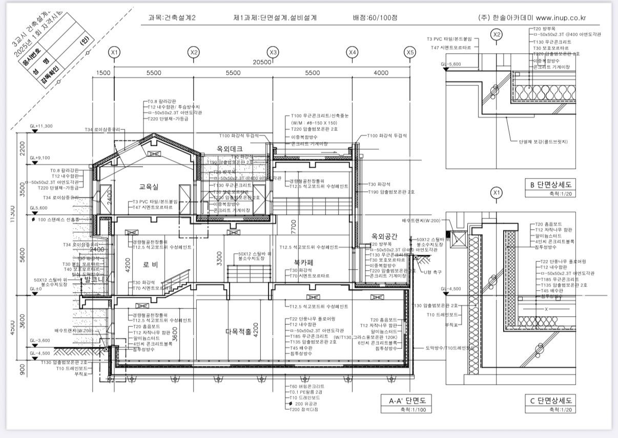
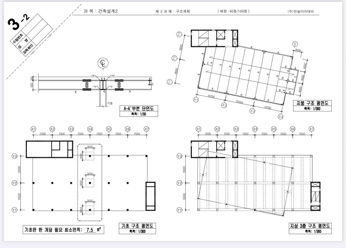
3교시 단면설계
1과제 단면설계 설비설계

2과제 구조계획

반응형
'[본업] 건축사 > 건축사자격시험' 카테고리의 다른 글
| [2025 건축사시험 일정] 2025년 2회 건축사 자격시험(2025. 9. 20.) 공고 (7) | 2025.08.07 |
|---|---|
| 건축사자격시험 2025년 1회 3교시 모범답안 주요점 (0) | 2025.07.28 |
| [2025 건축사시험 일정] 2025년 1회 건축사 자격시험(2025. 3. 7.) 공고 (0) | 2025.01.07 |
| 건축사 시험 합격 제출 서류 목록 (0) | 2024.12.05 |
| 2024년 제2회 건축사자격시험 모범답안(1교시,2교시,3교시, 한솔아카데미) (0) | 2024.10.17 |
